Когда следует проводить обследование кровли здания
Регулярность, с которой проводят обследование кровли, зависит от владельца здания или сооружения. Как правило, строительная экспертиза кровли заказывается уже при наличии видимых дефектов изоляции и возникновении протечек, из-за которых возможны проблемы. Желательно на основании проведенного обследования выполнить правильное проектирование, тогда, в некоторых случаях, можно избежать необходимости обследования крыши в дальнейшем.
Грамотная эксплуатация подразумевает выполнение обследования крыши и кровли при возникновении следующих факторов:
- Исследования при выходе из стандартного режима эксплуатации (очень снежная и холодная зима, после проведения работ на крыше и превышения расчетных нагрузок при проведении этих работ).
- Профилактические мероприятия с целью оценки общего состояния надежности кровельного материала. К примеру, обследование мягкой кровли желательно проводить не реже 1 раза в 2 года.
- Необходимость в техническом заключении при составлении плана ремонтных работ здания.
Способы испытания участков внутренней канализации

- испытания труб сети на прочность, а их соединений на герметичность;
- соответствие расположения установленных приборов и элементов отводящего трубопровода проектной документации;
- правильность установки приборов сантехники по отношению к напольной поверхности (расстояние от пола до верхнего края приемника каждого сантехприбора прописано в упомянутом выше СНиП);
- наличие уклона горизонтальных участков трубы и степень вертикальности стояков.
Испытание труб и соединений на герметичность в самотечной системе, независимо от материала изготовления трубопровода и фасонных элементов, производится методом пролива. Суть методики в том, что часть основного трубопровода (лежака) отгораживается на определенном участке от остальной системы. Делается это специальными заглушками через ревизионные отверстия. Отделенный участок проверяется наполнением водой через патрубки сантехнических приборов
Согласно СНиП результаты пролива заслуживают внимание, если наполнение трубопровода происходило с участием минимум ¾ (или 75%) всех приборов, присоединенных на данном обособленном участке. Тестирование трубопровода методом пролива считается положительным, если соединения после наполнения системы не дали малейшей течи за время 10-15 мин (зависит от объема заполняемого водой участка)
Согласно нормативной документации пролив, то есть испытание канализационной системы наполнением водой, информативно при t˚ воздуха выше 5˚. Если температура ниже, проводится пневматическая проверка герметичности труб и соединений (сжатым воздухом). Воздушным способом определяют и целостность стояка, иногда, — наружных участков трубопровода. Применим пневматический метод тестирования при оценке работоспособности напорной системы канализации, когда стоки выводятся наружу принудительно, под давлением, создаваемым насосным оборудованием.
Расположение установленных приборов сантехники и его соответствие проектной документации определяется визуально. Объективно оценивается и отражается в акте высота стояния приемника каждого прибора, правильность подключения водостока унитаза, сифонов умывальника, ванной, мойки и т.п. Зрительно оценивают и состояние самих сантехнических приборов. Они должны быть без видимых загрязнений и механических повреждений.
Правильность уклона труб внутри и снаружи здания контролируют с помощью пузырькового строительного уровня. Если уклон лежака внутренней сети канализации допускается не менее 1 см на метр погонный, то снаружи этот показатель нужно увеличить до 2 см на метр.
Виды и требования актов скрытых работ
Акт скрытых работ – это документ, составленный специалистами, который подтверждает выполнение работ, которые невозможно визуально контролировать. В случае строительства и ремонта кровли акт скрытых работ является неотъемлемой частью процесса и необходим для дальнейшей эксплуатации и использования кровли.
Виды актов скрытых работ:
- Акт скрытых работ на устройство кровли. Включает в себя информацию о качестве выполняемых работ, применяемых материалах, геометрии и укладке кровли, а также о состоянии скрытых конструкций.
- Акт скрытых работ на монтаж кровельного оборудования. Содержит сведения о правильности монтажа и подключения кровельных систем, таких как водосточные системы, вентиляционные люки и другие элементы.
- Акт скрытых работ на устройство гидроизоляции кровли. Включает информацию об исполнении гидроизоляционных работ, проведенных испытаниях, проверке качества покрытия и герметичности системы.
- Акт скрытых работ на устройство теплоизоляции кровли. Содержит данные о применяемых материалах, методах укладки и качестве выполненных работ по утеплению кровли.
Требования к оформлению актов скрытых работ:
- Акт должен быть составлен письменно и подписан специалистом, выполнившим работы, и руководителем проекта или объекта.
- В акте указываются все необходимые данные, включая дату выполнения работ, название и адрес объекта, информацию о использованных материалах и особенностях работ.
- Акт должен содержать фото- и видеоматериалы до начала и после выполнения работ, чтобы замечания и проблемы можно было проиллюстрировать визуально.
- Все акты скрытых работ должны быть складированы и доступны для проверки государственными и муниципальными органами.
Таким образом, акты скрытых работ играют важную роль в обеспечении прозрачности и качества выполнения работ по устройству и ремонту кровли. Они необходимы для подтверждения соответствия работ требованиям и нормативам, а также для предоставления документации и гарантийных обязательств.
Пример акта приемки
Документ акта приемки представляет собой форму ИГАСН 15/99. В нем содержаться все данные, которые были выявлены при проверке кровли после монтажа или ремонта и их соответствие проектной документации.
Данный документ составляет специальная комиссия, в составе которой числятся представители организации-подрядчика, представители заказчика, авторы проекта кровли, организация, за которой числится эксплуатация данного здания.
Оформление документа происходит таким образом:
- Написание посередине листа названия «Акт приемки кровли» с указанием адреса объекта.
- Указание даты осмотра чуть ниже.
- Указание списка членов комиссии с названиями должностей.
- Основная часть предполагает указание того факта, что ремонт был выполнен. А также в ней прописываются проектные документы и перечисляются все материалы, которые были использованы.
- Третий пункт подразумевает указание той документации, на основе которой было произведено заполнение акта о приемке кровли после ремонта.
- Последним указывается срок по времени, за который был проведен ремонт кровли.
- В нижней части документа прописывается, что акт был принят и оставляются места для подписей задействованных сторон.
Более подробно рассмотреть акт о приемке можно на представленном ниже фото, которое дает полное представление об этом документе и его заполнении:
Вся сопутствующая работам информация, в том числе по приемке хранится у заказчика (застройщика), что и предполагает действующее законодательство. Если здание переходит в ведение другой организации, то именно она получает документы на хранение.
Образец акта осмотра зданий и сооружений
Акт осмотра зданий и сооружений представляет собой письменный документ, который фиксирует техническое состояние строения на момент осуществления проверки.
В его составлении принимает участие специальная комиссия, в которую входят инженеры, строители и т. д.
Акт осмотра зданий и сооружений: образец заполнения
Для оформления акта используется унифицированная форма.
В ней обязательно необходимо указать дату, по состоянию на которую проводился осмотр. Далее перечисляется состав комиссии, с указанием фамилий ее членов и занимаемых ими должностей.
В акте также указывается число и номер приказа, которым была создана комиссия. В необходимо обозначить период, на протяжении которого комиссия должна провести свою работу.
Сам текст акта состоит из перечисления характеристик объекта, которые дают возможность оценить его техническое состояние.
Для этого используется специальная таблица, в которой нужно заполнить следующие разделы:
наименование и место расположения (в том числе ряд и т. д.) здания или отдельной его конструкции,
описание выявленных в результате осмотра дефектов,
вид работы, необходимой для их устранения,
срок выполнения ремонтных работ и т. д.
После подписания акта всеми членами комиссии, он подлежит утверждению директором или главным инженером определенной организации.
Кто выполняет работу по составлению акта
Для проведения осмотра здания создается специальная комиссия, включающая преимущественно лиц, имеющих инженерное или строительное образование.
Комиссия создается приказом, в котором утверждается ее состав, а также период времени, отведенного для проведения соответствующей работы.
Основанием для проведения осмотра выступают следующие обстоятельства:
необходимость провести плановое обследование,
для определения последствий стихийного бедствия,
перед реконструкцией или капитальным ремонтом здания.
По результатам осмотра члены комиссии составляют акт, который утверждается руководителем предприятия или его главным инженером.
Рекомендации комиссии служат основаниям для издания приказа директором. В нем определяется комплекс мер, необходимых для устранения выявленных недостатков.
А также назначаются лица, ответственные за проведения ремонтных работ в определенный срок.
Акт обследования зданий и сооружений, точный анализ инженерных сетей
водоснабжения и канализации,
отопления,
электроснабжения,
вентиляции.
Обследования инженерных сетей имеет своей целью определения качества работы оборудования, его технического состояния и функциональных возможностей.
В процессе работы комиссия проверяет уровень соответствия инженерных сетей требованиям разнообразных нормативных документов и стандартов.
Нужно отметить, что проведения такого рода обследования выступает самым действенным способом, позволяющим определить физический износ электросетей, водоснабжения, канализации и других инженерных систем.
Обследование крыши, кровли
Крыша или кровля представляет собой верхнюю часть строения, которая защищает его от разного рода внешних воздействий, в первую очередь атмосферных осадков.
Именно крыша дает возможность сохранить внутри помещения стабильный микроклимат.
Ее обследование рекомендуется проводить систематически, что даст возможность избежать появления серьезных проблем, для устранения которых потребуется дорогостоящий ремонт.
В процессе осмотра кровли необходимо детально ее осмотреть как снаружи, так и изнутри.
В первую очередь следует обратить внимание на следующее:
тип кровли и схему ее покрытия,
состояние несущего основания и защитных покрытий,
конструкцию карниза,
наличие водотока и оградительной системы,
толщина и уровень износа изоляционных слоев,
состояние защитного и накрывного покрытия, а также креплений и осадочных швов,
наличие дефектных участков.
Обследование чердака
Осмотр чердака в первую очередь проводится для того, чтобы убедиться в его соответствии условиям технических стандартов, а также в безопасности этого помещения для нижних этажей.
Если нормативы его строительства или эксплуатации нарушены, то на нижних этажах наблюдается повышенный уровень влажности, духота, что в свою очередь приводит к образованию плесени.
Если своевременно не предпринять нужных мер, то такая ситуация в конечном итоге приведет к постепенному разрушению здания.
При обследовании чердака необходимо обращать внимание на следующие моменты:
целостность и прочность перекрытий.
Прием изоляционной системы кровли
Особое внимание при обследовании кровли обязательно обращается на гидроизоляцию. Это важнейший фактор, который защищает строение от атмосферных явлений
При этом проверяется тщательным образом примыкание гидроизоляционного ковра ко всем конструкциям и системам кровли. Если необходима экспертиза физико-механических свойств покрытия, то делаются вырубки размером 40 на 40 см. Впоследствии все вырубленные места закрываются тем же материалом, которым покрыта сама кровля. Испытания образцов проводят на основе стандарта ГОСТ 2678-94. После обязательно составляется акт испытания, в который заносится вся информация.
Важно! Проверка гидроизоляции осуществляется после дождей или с применением воды, которая выливается на поверхность. Если в подкровельном пространстве имеется чердак, то проверка паро- и теплоизоляции просто необходима
Она проводится также при помощи вырубки некоторых участков материала для детального изучения. Толщину утепляющего слоя проверяют металлическим штырем с нанесенными на него делениями, а тепловой поток при помощи тепломера. В соответствии с пунктом П-3-79 СНиП выявляется показатель допустимого уровня влажности утеплителя. Если есть расхождения, то такой материал подлежит замене
Если в подкровельном пространстве имеется чердак, то проверка паро- и теплоизоляции просто необходима. Она проводится также при помощи вырубки некоторых участков материала для детального изучения. Толщину утепляющего слоя проверяют металлическим штырем с нанесенными на него делениями, а тепловой поток при помощи тепломера. В соответствии с пунктом П-3-79 СНиП выявляется показатель допустимого уровня влажности утеплителя. Если есть расхождения, то такой материал подлежит замене.
Состав исполнительной документации по разделу «Водопровод и канализация» (ВК)
1. Реестр исполнительной документации 2.Общий журнал работ и специальные журналы работ:
- Общий журнал работ
- Журнал сварочных работ (СНиП 3.03.01-87)
- Журнал антикоррозионной защиты сварных соединений
- Журнал входного контроля качества
- Журнал авторского надзора (заполняется ответственным лицом от проектной организации)
- Исполнительные съемки прокладки трубопроводов В1, В2, В4, Т3, К1 (с отметками)
- Исполнительная схема устройства траншей под выпуска канализации (с подсчетом объемов грунта)
- Исполнительная схема устройства основания под выпуски канализации
- Прокладка трубопроводов под полами
- Тепловая изоляция трубопроводов
- Монтаж системы трубопроводов В1, В2, В4, Т3, К1 и крепление к конструкциям здания
- Устройство прохода трубопроводов ХГСВ через стены
- Антикоррозионная обработка трубопроводов
- Устройство естественного основания под выпуски канализации (подземная часть)
- Устройство несжимаемого основания под выпуски канализации (подземная часть)
- Устройство выпусков канализации (подземная часть)
- Устройство теплоизоляции выпусков канализации (подземная часть)
- Обратная засыпка выпусков ливневой канализации (подземная часть)
- Монтаж кронштейнов крепления трубопроводов пожарного водоснабжения к металлоконструкциям каркаса здания
- Антикоррозионная защита сварных соединений трубопроводов противопожарного водоснабжения
- Монтаж пожарных кранов в комплекте
- Герметизация мест прохода трубопроводов через наружные стены
- Монтаж очистных установок
5.Акты приемки и испытаний:
- Акт о проведении промывки и дезинфекции трубопроводов ХГСВ (с заключением)
- Акт гидростатического или манометрического испытания на герметичность трубопроводов В1, В2, В4, Т4, К1
- Акт испытания системы внутренней канализации и водостоков на пролив
- Акт испытания внутреннего противопожарного водопровода на водоотдачу
- Акты индивидуального испытания оборудования (насосы, водонагреватели и т.д.)
- Акт приемки системы и выпусков внутренней канализации
- Акт освидетельствования сетей инженерно-технического обеспечения
- Акт обследования водомерного узла
- Акт об окончании монтажных работ
6. Удостоверения сварщиков, протоколы аттестации сварщиков
7. Паспорта , сертификаты качества , пожарные сертификаты, санитарно-гигиенические заключения на строительные материалы, изделия и конструкции. На все поступающие на строительную площадку строительные материалы, изделия, конструкции и оборудование должен составляться акт входного контроля с последующим подписанием его ответственными лицами
8. Комплект рабочих чертежей на строительство предъявляемого к приемке объекта, разработанных проектными организациями, с надписями о соответствии выполненных в натуре работ этим чертежам или внесенным в них изменениям, сделанными лицами, ответственными за производство строительно-монтажных работ, согласованными с авторами проекта.
9. Документы о согласовании отступлений от проекта при строительстве
- Информационный лист монтажной организации
- СРО монтажной организации
- Приказы на ответственных представителей
- Удостоверения на персонал (сварщики, электротехнический персонал и т.п.)
- Рабочая документация со штампом Заказчика «В производство работ»
- Проект производства работ (титульный лист и лист ознакомления)
Кровельные работы: образец акта и приемка
Образец акта приемки кровли можно найти по (cкачиваний: 2386)
.
Монтаж кровли из рулонных материалов помимо окончательной приемки готовой кровли требует проведения промежуточной приемки законченных элементов. Для кровли из штучных материалов выполняется только окончательная приемка. Качество работ, примененные материалы и изготовленные конструктивные элементы кровли должны соответствовать СНиП III-20-74 и требованиям проекта
.
Промежуточная приемка обязательна для следующих законченных конструктивных элементов крыши
:
- основание под кровлю (перед началом кровельных работ);
- каждого промежуточного слоя из рулонных материалов (перед укладкой следующего слоя);
- основание под пароизоляционный слой и кровельный ковер, непосредственно выполненную пароизоляцию и теплоизоляцию (до монтажа вышележащих конструкций);
- каждый армированный мастичный слой (толщина армирующего материала должна составлять 1-1,5 мм).
Требования к основанию под пароизоляцию и гидроизоляцию мастичных и рулонных кровель
:
- прочность и жесткость;
- ровная поверхность (просветы между трехметровой рейкой и поверхностью не должны превышать 5 мм);
- переходы между плоскостями основания и вертикальных конструкций должны быть плавными.
При приемке законченного кровельного пирога проверяется угол уклона, который может отличаться от проектного не более, чем на 5% для скатных кровель и 1-2% для плоских. В процессе приемки необходимо тщательно проверить поверхность кровли, особенно в местах примыкания к вертикальным конструкциям, у воронок, в ендовах. Для проверки водонепроницаемости кровля может искусственно заливаться водой или осматриваться после дождя.
- поверхность кровельного покрытия из рулонных материалов не имеет пробоин, вмятин, воздушных пузырей;
- обустройство воронок, ендов, примыканий выполнено в соответствии с проектом;
- рулонные материалы приклеены прочно, без отслоений;
- наружные водосливные трубы установлены отвесно, звенья труб прочно прикреплены к стенам и надежно соединены между собой;
- обеспечено плотное прилегание к обрешетке элементов кровель, выполненных из штучных материалов;
- покрытие из штучных материалов не имеет просветов при осмотре снизу, ряды элементов параллельны коньку или карнизному свесу;
- штучные кровельные материалы не имеют коробления, сколов, трещин.
Приемка кровельных работ производится с учетом данных лабораторного контроля качества применяемых материалов (штучных, рулонных, мастик, паст). Для контроля качества готового кровельного пирога выполняется вырубка (фрагмент не менее 20×20 см) с последующим освидетельствованием и испытанием образцов мастичной или рулонной гидроизоляции. В лабораторных условиях исследуется
:
- внешний вид поверхности полученных образцов;
- толщина;
- прочность сцепления с основанием;
- структура в изломе;
- физико-механические свойства (водопоглощение, плотность, прочность, набухание и т.д.).
Приемочная комиссия составляет итоговый акт приемки с приложением к нему документации о промежуточной приемке работ, результаты испытаний материалов и инструментальной проверки.
Образец АКТ испытания наружных пожарных лестниц ограждений кровли
Гарантируем успешную проверку Госпожарнадзора — без штрафов и предписаний. Для инспекторов — готовим полный пакет документов установленного образца. Помогаем пройти проверку с первого раза.











Работы, указанные в п. Вариант при необходимости. В результате осмотра результата работ недостатки не выявлены выявлены. Вариант в случае выявления недостатков. Заключение: При приемке результата работ установлено, что работы выполнены в полном объеме в срок или с нарушением условия Договора о сроке выполнения работ, то есть несвоевременно.
- Образец акта гидравлического испытания трубопроводов
- Понятие «акт» применяется для обозначения определенного действия в прошлом или настоящем, зафиксированного документально. Посредством акта могут быть оформлены любое действие или событие.
- Цены на Все виды Кровли из металла Каталог поставщиков.
- Средний стаж работы нашего специалиста — более 15 лет.










Требования и правила проведения испытания
4
Порядок действий при заливе достаточно прост, важно соблюдать последовательность действий и и настаивать на соблюдении Ваших прав.
ПРОТОКОЛ №___
465
Основным нормативным документом, регламентирующим испытание ограждений кровли, является ГОСТ Р
Свежие записи
335
Это же требование распространяется на ограждения крыш домов. Обязательные проверки конструкций осуществляются раз в пять лет.
Акт испытания кровли на пролив образец
75
Для того чтобы оценить качество произведенного рабочими ремонта крыши проводится ее проверка с целью выявить соответствие всем критериям проектной документации и создается специальный документ под названием «Акт приемки кровли», о котором подробнее мы и поговорим в этой статье.
Акт приемки кровли: образец
77
Для того чтобы оценить качество произведенного рабочими ремонта крыши проводится ее проверка с целью выявить соответствие всем критериям проектной документации и создается специальный документ под названием «Акт приемки кровли», о котором подробнее мы и поговорим в этой статье
Сразу же после работ первоочередно проводят анализ и сверку сертификатов и удостоверений качества на те материалы, которые использовались при непосредственном ремонтном процессе на кровле.
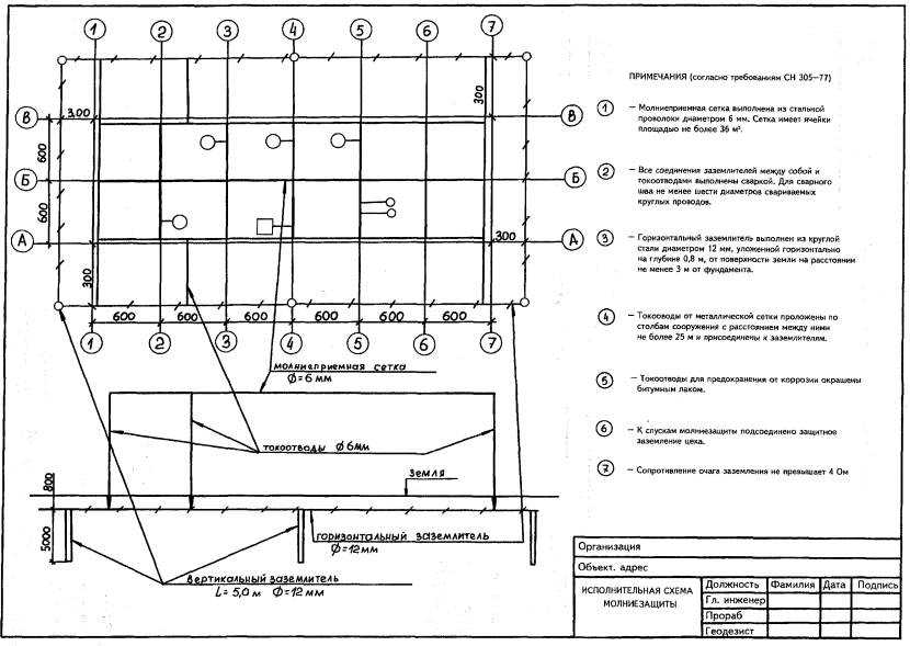
Обследование кровли
224
Ваш браузер не поддерживает плавающие фреймы! Цитата vad
Свежие комментарии
23
Основным нормативным документом, регламентирующим испытание ограждений кровли , является ГОСТ Р С принятием
Приемка изоляции кровли
135
Установленные ограждения на крышах домов еще не означает, что их монтаж был выполнен в соответствии с нормами и требованиями, а также они станут гарантией безопасности.
Установленные на крышах домов ограждения подлежат проверке. Испытание ограждений кровли на прочность — обязательный этап сдачи кровли в эксплуатацию. Эти действия проводят организации, получившие специальное разрешение лицензию. Ведь вполне может случиться, что монтаж этих конструкций был выполнен не в соответствии с нормами и требованиями.







Техническое состояние кровли и пример акта приемки
Работы по обследованию крыши включают в себя проверку состояния несущих конструкций и кровельного покрытия. Кроме того, в обязательном порядке проверяется исправность ограждающих элементов и составляется акт испытания ограждений кровли.

При исследовании несущих конструкций необходимо определить:
- наличие дефектов (коррозии, нарушения стыков элементов);
- достаточность опирания несущих конструкций на фермы, балки, колонны;
- запас прочности или недостаточность несущей способности кровельного каркаса;
- наличие и состояние связей жесткости.
Кровельное покрытие:
- осматривается на предмет протечек;
- определяется необходимость замены покрытия;
- выполняется вскрытие с целью проверки достаточности толщины утеплителя и кровельного материала.
Акт обследования кровли составляется на основании данных проверки ее технического состояния, выдаются рекомендации по составу покрытия кровли. Обследование кровли проводится по установленным методикам, с использованием всей имеющейся документации включая детальный план, на котором представлены разрезы кровельного пирога, описание конструкции узлов, перечень использованных материалов.
Обследование кровли включает в себя осмотр ее поверхности с плановым описанием состояния: фиксируются все трещины, места возможных протечек. Уклон кровли измеряется с использованием трехметровой металлической рейки, оснащенной строительным уровнем. Требуется определить величину просадки, которая не должна превышать 1-2 мм в год.

Все трещины обозначаются специальными маяками, их расположение отражается на плане крыши. Периодический осмотр маяков позволяет фиксировать изменение линейных размеров трещин
Особое внимание уделяется обследованию состояния гидроизоляции – проверяется герметичность кровельного ковра в местах примыканий, производится контрольная вырубка участков кровли для лабораторного анализа (с последующей заделкой отверстия кровельными материалами). Акт обследования кровли здания составляется с учетом испытаний контрольных изъятий, выполненных по ГОСТ 2678-94. Также выполняется осмотр чердачных помещений (при их наличии) с оценкой действительного состояния паро- и теплоизоляции
Промеряется толщина утеплителя при помощи стального штыря с нанесенными делениями. Для измерения теплового потока используется тепломер. Если влажность утеплителя не соответствует требованиям СНиП, принимается решение о его замене. При обследовании совмещенных крыш устанавливается состав и состояние сопряженных материалов кровельного пирога. С этой целью выполняются вскрытие кровли и все необходимые измерения. Полученные результаты необходимо внести в акт технического состояния кровли
Также выполняется осмотр чердачных помещений (при их наличии) с оценкой действительного состояния паро- и теплоизоляции. Промеряется толщина утеплителя при помощи стального штыря с нанесенными делениями. Для измерения теплового потока используется тепломер. Если влажность утеплителя не соответствует требованиям СНиП, принимается решение о его замене. При обследовании совмещенных крыш устанавливается состав и состояние сопряженных материалов кровельного пирога. С этой целью выполняются вскрытие кровли и все необходимые измерения. Полученные результаты необходимо внести в акт технического состояния кровли.
В жилом многоквартирном доме проводится опрос жильцов с целью выяснения проблем, связанных с состоянием кровли. Осуществляется оценка температурно-влажностного режима в помещениях, при помощи термощупа ТК-5 измеряется температура поверхностей потолка и стен.
Образец акта обследования кровли предусматривает занесение в документ всех полученных и систематизированных данных. На их основании в дальнейшем составляется дефектная ведомость, ведется разработка плана ремонтных работ с целью устранить выявленные недостатки. К акту требуется приложить фотографии (при необходимости – эскизы) дефектных мест. Перечень ремонтных работ, сформированный на основании акта обследования, является основой для формирования сметы и технического задания для ремонтной бригады.
После окончания работ по строительству кровли происходит оценка деятельности специалистов. При этом учитываются качество, прочность и внешний вид готовой конструкции. Также проверяется, соответствуют ли материалы, которые были указаны в проекте
Особое внимание обращается на гидроизоляцию и утепление крыши. После всех процедур проверки составляется акт приемки кровли
Инструкции по проведению испытания кровли на пролив
Испытание кровли на пролив – это важный шаг при строительстве или ремонте кровли, который позволяет проверить ее герметичность и защитные свойства. Данный процесс заключается в имитации максимально возможного нагрузочного воздействия на кровлю с целью выявления возможных протечек или пробоин.
Для проведения испытания кровли на пролив необходимо выполнить следующие шаги:
- Подготовьте оборудование. Для проведения испытания кровли на пролив вам понадобится:
- Насос с достаточной мощностью для создания давления воды;
- Шланги и соединительные фитинги для подключения насоса к водопроводной системе;
- Водоем или специальную контейнерную емкость для хранения воды;
- Датчики или другое оборудование для контроля протечек.
Подготовьте кровлю. Прежде чем начать испытание, убедитесь, что кровля правильно установлена и герметична. Проверьте качество установки и состояние всех элементов кровли.
Налейте воду на кровлю. Используя насос, подключенный к водопроводной системе или водоему, начните набирать воду на кровлю с низким давлением. Плотность набора должна быть равномерной, чтобы предотвратить образование стоячих или скопившихся водных масс.
Наблюдайте за кровлей. Во время набора воды внимательно наблюдайте за поведением кровли. Ищите признаки протечек, пробоин или других дефектов. Продолжайте набор воды до достижения максимального уровня, затем поддерживайте его в течение определенного времени (обычно не менее 15-30 минут).
Оцените результаты испытания. После окончания испытания проанализируйте результаты. Если были обнаружены протечки или другие дефекты, зарегистрируйте их и примите меры для устранения проблемы.
Документируйте испытание. Важно составить отчет о проведенном испытании, включающий все детали: дату и время проведения, условия испытания, оборудование, результаты, а также принятые меры по устранению выявленных дефектов. Этот отчет может потребоваться для подтверждения качества работ.
Проведение испытания кровли на пролив поможет убедиться в ее надежности, а также выявить и устранить возможные проблемы. Памятайте, что испытание должно быть выполнено квалифицированным специалистом в соответствии с требованиями и нормами безопасности.
Этапы проведения обследования кровли
Обследование крыши состоит из нескольких этапов:
- Изучение документации на кровлю, предоставленной заказчиком (план с высотными отметками, уклонами, инженерно-техническим оборудованием и т.д.).
- Обследование и обмеры крыши по челночной схеме, с замерами уклонов, просадок и т.д. В местах появления дефектов устанавливаются маяки.
- Обследование ограждения кровли.
- Проверка чердачных помещений с отбором материала для исследований.
- Проведение осмотра потолков и стен верхних этажей на предмет протечек и нарушения гидроизоляции.
- Составление дефектной ведомости, которая служит основанием для оценки состояния кровли.
Экспертиза плоской кровли проводится сотрудниками нашей компании с использованием самых современных методик и оборудования. Помимо инженерного состава, для получения более точных сведений привлекается лаборатория для осмотра кровельного пирога. При проведении обследования с участием лаборатории, отбираются образцы материалов и конструкций крыши для дальнейшего их испытания и анализа в лабораторных условиях.
Для выполнения работ используются тепловизоры. Метод тепловизионного обследования значительно сокращает время на обнаружение дефектов кровельного материала и позволяет увидеть изоляцию всей крыши, от бетонного основания до водосливов, стропил и т.д. Подобный метод позволяет увидеть даже самые незначительные места повреждения изоляции.
При проведении исследований выполняется целый комплекс операций:
- Определяется наличие коррозии на крепежных элементах.
- Исследуется наличие механических и биологических повреждений на стропилах.
- Исследуется герметичность покрытия для плоской кровли.
- Определяется влажность и наличие биологических повреждений для деревянных конструкций.
- Проводится технический анализ состояния опорных поверхностей элементов.
- Определяется конструкция кровельного покрытия для оценки соответствия строительным нормам.
Обследование ограждения кровли в городе Москва является очень актуально.
Порядок проведения
Оценивание уровня безопасности и уровня устройства оградительных конструкций проводят обученные специалисты спецоборудованием. Для надлежащего оценивания применяется статическая нагрузка, которая в 1,5 раза превосходит максимально допустимую. Нагрузку специалисты удерживают 2 минуты – и по итогам теста на заграждениях не должно возникнуть трещин и деформированных участков.
Помимо испробования оградительных конструкций на надежность, выполняется и визуальное обследование качества поверхности – защитного нанесения и сварки соединений. После всех проверок специалисты выписывают протокол о том, что заградительные элементы соответствуют требованиям государственного стандарта. А на обследуемые изделия закрепляются бирки с данными о результатах исследований.
Что касается такого фактора, как периодичность, то нормативы указывают, что требуется:
- 1 раз в год контролировать цельность лестниц и заградительных конструкций (оформляют акт испытания ограждения);
- 1 раз в 5 лет производить пробы на выдерживание нагрузки (оформляют протокол).
Чтобы вы могли удостовериться в том, что документы, предоставляемые организацией-исполнителем, заполнены правильно, и чтобы избежать необходимости переоформления в случае неточностей, предлагаем рассмотреть подробный образец акта испытания, который представлен ниже.
Протокол о проведении профилактических испытаний ограждения кровли:


После оформления договора на предоставление услуг специалисты становятся ответственными за их качество. А соответственно – при различных случаях обвинения обладателя здания считаются необоснованными. Поэтому проводить проверочные работы должны лицензированные специалисты, а не сам владелец объекта.



























