Перспективный г образной формы дом г
Уникальность формы
Образные дома буквой г представляют собой двухэтажные дома, имеющие форму греческой буквы г. Такая форма делает их уникальными и привлекательными. Они отлично вписываются в современный городской ландшафт и становятся настоящими акцентами в архитектуре.
Преимущества образных домов буквой г
Помимо своей необычной формы, образные дома буквой г обладают рядом преимуществ:
- Функциональность: Образные дома предлагают большое количество жилой площади, благодаря чему каждый член семьи может комфортно разместиться. Также они предлагают возможности для организации дополнительных помещений, таких как кабинеты, спортивные зоны или игровые комнаты.
- Естественное освещение: Благодаря своей форме, образные дома буквой г обеспечивают хорошее естественное освещение внутренних помещений. Большие окна и светлые интерьеры создают комфортную атмосферу внутри дома.
- Удобство планировки: Образные дома буквой г позволяют разделить площадь на зоны с разными функциями, такими как гостиная, спальня, кухня и ванная комната. Это позволяет удобно организовать пространство и обеспечить комфортное проживание для всех жильцов.
Образные дома буквой г предлагают множество возможностей для творческого и уникального подхода к созданию дома
Если вы хотите придать своему жилью особенный шарм и выделиться среди привычных архитектурных решений, обратите внимание на проекты домов образной формы
Проекты одноэтажных и двухэтажных коттеджей
Если земельный участок угловой или имеет недостаточную площадь для постройки большого коттеджа, рекомендуется составить проект одноэтажного дома буквой Г. В современном строительстве такая планировка разрешает сберечь пространство двора и поместить в одном здании большую семью.
Типовой проект содержит 2-3 комнаты в одном крыле и гостиную, столовую, кухню в другом крыле. Внутренние помещения имеют больше окон и света. Также планировка допускает наличие мансарды. Это поможет вместо создания двухэтажного дома использовать чердак в качестве жилой зоны. Часто к одному из крыльев коттеджа пристраивают гараж.
Дом буквой Г – хорошая альтернатива двухэтажным коттеджам. На небольшой площади возводится здание с комфортным расположением комнат. Под одной крышей помещаются жилая зона, подсобные помещения, бассейн или игровая, гараж, веранда. Чтобы планировка внутренних комнат и ландшафт участка соответствовал световым сторонам, рекомендуется обратиться к архитекторам и строителям.
Особенности проектов
Даже одноэтажный Г-образный дом прекрасно вмещает в себя 3-4 жилые комнаты, просторную кухню, смежный или раздельный санузел, кладовку, коридоры. Специалисты предлагают несколько вариантов постройки частного здания. Планировка содержит чертежи с расположением внутренних помещений, гаража, мансарды:
- для лучшего прогрева дома котельная размещается в цокольном помещении;
- между «шумной» и «тихой» зоной располагают кухню и столовую;
- если проект включает мансарду, она используется в качестве «тихой» зоны. Также на каждом уровне обустраивается санузел;
- во внутреннем дворике рекомендуется создать террасу или веранду, которая станет дополнительной зоной отдыха даже в плохую погоду;
- встроенный гараж отапливается вместе с домом, что позволяет сэкономить на проведении системы отопления;
- планировка террасы проводится в южной или юго-восточной части постройки с подветренной стороны.
Угловой участок с г-образным домом чаще всего оснащается открытой террасой, что позволит проводить время на свежем воздухе. При планировке и строительстве следует помнить, что веранда является частью дома, имеет общую крышу с коттеджем. Эта комната также должна отапливаться. Если планируется разводить цветы, пристройка располагается с южной стороны.
Плюсы и минусы
Одноэтажный дом буквой Г возводится на небольших участках, где стандартные прямоугольные или квадратные постройки не оправданы. За счет необычной формы создаётся несколько полезных зон, при этом сэкономив на шумоизоляции
Дополнительно архитекторы уделяют внимание достоинствам проекта:
- Экономия на фундаменте, так как здание г-образной формы одноэтажное.
- Возвести коттедж можно самостоятельно.
- Планировка комнат с пристройками проводится в зависимости от сторон света, что позволяет построить светлый дом.
- Подключение пристроенного гаража к отоплению коттеджа.
- Простота монтажа коммуникаций: водопровода, канализации, отопления, вентиляции.
- Наличие уютного безветренного дворика.
- При желании возведение общей крыши для гаража, веранды и дома.
- Использование различных материалов для постройки стен: кирпич, шлако- и пеноблок, дерево.
- Парадный вход может располагаться как со стороны улицы, так и со стороны ландшафтной планировки участка.
Недостатком проекта является увеличение растрат на строительство и обделку стен. Также из-за крыльев повышается теплопотеря, что в будущем скажется на счетах по отоплению.
Особенности проектов
Даже небольшой одноэтажный дом в форме буквы «Г» может вместить в себя 3-4 жилые комнаты, просторную кухню, санузел (смежный или раздельный), кладовку и коридоры. Специалисты предлагают различные варианты проектирования частного дома с такой конфигурацией.
- для лучшего прогрева дома котельная размещается в цокольном помещении;
- между «шумной» и «тихой» зоной располагают кухню и столовую;
- если проект включает мансарду, она используется в качестве «тихой» зоны. Также на каждом уровне обустраивается санузел;
- во внутреннем дворике рекомендуется создать террасу или веранду, которая станет дополнительной зоной отдыха даже в плохую погоду;
- встроенный гараж отапливается вместе с домом, что позволяет сэкономить на проведении системы отопления;
- планировка террасы проводится в южной или юго-восточной части постройки с подветренной стороны.
Угловой участок с г-образным домом чаще всего оснащается открытой террасой, что позволит проводить время на свежем воздухе. При планировке и строительстве следует помнить, что веранда является частью дома, имеет общую крышу с коттеджем. Эта комната также должна отапливаться. Если планируется разводить цветы, пристройка располагается с южной стороны.
Одноэтажный дом буквой Г возводится на небольших участках, где стандартные прямоугольные или квадратные постройки не оправданы. За счет необычной формы создаётся несколько полезных зон, при этом сэкономив на шумоизоляции
Дополнительно архитекторы уделяют внимание достоинствам проекта:
- Экономия на фундаменте, так как здание г-образной формы одноэтажное.
- Возвести коттедж можно самостоятельно.
- Планировка комнат с пристройками проводится в зависимости от сторон света, что позволяет построить светлый дом.
- Подключение пристроенного гаража к отоплению коттеджа.
- Простота монтажа коммуникаций: водопровода, канализации, отопления, вентиляции.
- Наличие уютного безветренного дворика.
- При желании возведение общей крыши для гаража, веранды и дома.
- Использование различных материалов для постройки стен: кирпич, шлако- и пеноблок, дерево.
- Парадный вход может располагаться как со стороны улицы, так и со стороны ландшафтной планировки участка.
Недостатком проекта является увеличение растрат на строительство и обделку стен. Также из-за крыльев повышается теплопотеря, что в будущем скажется на счетах по отоплению.
Проекты одноэтажных домов до 150 м²: фото и описание планировок
Одноэтажные дома с жилой площадью до 150 м² прекрасно подходят для семей из 4-5 человек. В них можно разместить три спальни, гостиную и кухню, а также пристроить гараж, сделать цокольный этаж, куда переместить все разводки коммуникации.
Мансарда – также хорошая идея для небольших по площади построек.

По европейским стандартам дом до 150 м² относится к малым, в таких конструкциях есть целый ряд преимуществ:
вариативность материала для возведения дома (брус, камень, пеноблок и другие);
компактность, что немаловажно для небольших участков;
меньший расход стройматериалов и физических затрат, что удешевляет строительство;
малая жилая площадь позволяет экономить на коммунальных платежах.

Спроектировать дом можно самостоятельно или заказать готовый план с возведение постройки под ключ. Выделяют несколько стандартных габаритов коттеджей до 150 м²:
- 10 на 12 м;
- 12×12 м;
- 11 на 11 м.
А также варианты с цоколем, мансардой и гаражом.
Планы одноэтажного дома 10 на 12 и 12 на 12 м с фото-примерами
В среднем жилая площадь в доме 10 на 12 составляет 140 м² с мансардным этажом. Распределение комнат, как и внешний облик дома, может быть разнообразным. Выбирая проект, стоит учитывать количество членов семьи, которые будут проживать под одной крышей.

При этом любой вариант одноэтажной постройки будет иметь ряд достоинств:
- возможность сделать мансарду при помощи двускатной крыши, увеличив площадь;
- есть вариант достроить гараж или дополнительную комнату вбок от дома, если позволяет площадь участка.
- легкость в эксплуатации и обслуживании дома: прекрасно подходит для детей или пожилых людей, так как нет необходимости подниматься по ступенькам;
- можно реализовать практически любую дизайнерскую задумку в фасаде, смонтировав арки, или другие украшения.

Среди готовых проектов планировка одноэтажных домов 10×10 или 10×12 м бывает разная. Вот несколько фотопримеров, чтобы вам было легче представить свое будущее жилье:




План одноэтажного дома 11 на 11 м из бруса с фото
Среди всех вариантов особое место занимают одноэтажные , которые могут быть любого метража, в том числе и 11 на 11м
Натуральный материал всегда привлекает внимание потребителей, смотрится красиво на любом участке, а при правильном строительстве срок эксплуатации построек велик

Среди всех достоинств построек из бруса выделяют несколько основных преимуществ:
- брус бывает обычный и профилированный, поэтому можно выбрать различные ;
- материал прочен и экологичен;
- легко смонтировать проводку в доме: нет сложности в просверливании стен;
- дерево не пропускает холод: дома можно возводить даже в климате с суровыми зимами.

К недостаткам относят способность дерева впитывать влагу, поэтому потребуется дополнительный слой гидроизоляции стен, а также следует нанести специальный состав от образования гнили и плесени.
Древесину относят к дорогим материалам, поэтому даже одноэтажный дом сложно отнести к дешевым постройкам.
Вариантов планировки много, например, красиво смотрятся деревянные одноэтажные дома 11 на 11 м с мансардой. Вот несколько фотопримеров разных готовых конструкций:




План одноэтажного дома 12 на 12: варианты распределения комнат
Продумать планировку одноэтажного дома 12×12 м легче, ведь большая площадь позволяет размещать комнаты в произвольном порядке, делать несколько больших или много маленьких помещений. Мансардный этаж отдают под кабинеты и детские комнаты или обустраивают нежилые зоны отдыха, а дополнительные открытие могут служить летним убежищем от зноя и палящего солнца.

Выбирая подходящее расположение комнат, можно от руки или в специальном 3D редакторе составить свой проект, взять за основу готовый вариант или заказать план у специалистов в строительной компании своего города.
Вот несколько вариантов планировок домиков 12 на 12 м, а также готовые конструкции:




Статья
Подбирая проект для возведения коттеджа на загородном участке, в первую очередь, нужно определиться с этажностью здания. Этот нюанс оказывает непосредственное влияние на бюджет будущего строительства и функциональность жилья. В свою очередь, выбор этажности постройки зависит от площади участка. Небольшая территория под застройку накладывает некоторые ограничения на выбор типа здания, поэтому удачный план одноэтажного дома всегда придется к месту.
Благодаря грамотной планировке даже очень маленький одноэтажный дом может быть комфортным и уютным
Идеальная планировка г образного дома
Особенностью г образного дома является его форма, которая напоминает букву Г. Такой проект позволяет разместить все необходимые помещения вокруг внутреннего дворика, создавая комфортную и уютную атмосферу для проживания.
Планировка г образного дома имеет ряд преимуществ:
1. Просторные и функциональные помещения.
Благодаря нестандартной форме дома, каждая комната получает максимальное количество естественного света и пространства. Это позволяет создать комфортные зоны для отдыха, работы и развлечений.
2. Уединенность и приватность.
Внутренний дворик дает возможность создать уединенное место для отдыха и барбекю. Вы сможете наслаждаться тишиной и покоем, находясь вдали от городской суеты.
3. Возможность добавления дополнительных помещений.
Планировка г образного дома позволяет легко добавить дополнительные помещения или пристройки. Вы сможете создать пространство под гараж, бассейн, сауну или любые другие необходимые зоны.
Г образные проекты домов подходят как для односемейных, так и для многодетных семей. Двухэтажный дом с г планировкой обеспечивает лучшую организацию пространства и удобство для всех членов семьи.
Если вы стремитесь к индивидуальности и комфорту в своем жилье, обратите внимание на г образные проекты домов. Они позволят вам создать уникальное пространство, отражающее ваш стиль и позволяющее наслаждаться жизнью
Дом в форме буквы Г станет вашим оазисом, в котором вы найдете гармонию и покой.
Приватность на высшем уровне в проектах г образных одноэтажных домов
Локализовать жилое пространство и зонуотдыха у дома от внешнего мира получилось за счет особой Г-образной формыздания. Открытым для посторонних взоров здесь остается только часть фасада, состороны которого сделан вход в дом. Внутренний двор одноэтажного дома Г-образной формы будто охвачен зданием. Создаетсявпечатление того, что придомовая территория с бассейном – это практически частьжилого пространства, но уже под открытым небом.
проекты одноэтажных домов г образной формы
Со стороны частного двора в домесделано панорамное остекление, закрывающееся роллетами. На террасе у бассейнавсегда можно устроить частную вечеринку, уединиться в тихой, романтическойобстановке, поиграть с детьми, просто отдохнуть, скрывшись от суеты и шумаснаружи дома.
фото г образных одноэтажных домов
Чтобы это закрытое пространство у домане казалось искусственным, во дворе высадили пальмы и кусты, сделали газон,использовали экологичные, природные материалы. Притом, все это разместилидостаточно компактно, и растения практически не занимают полезную площадь. Онипомогли оживить обстановку, расставить акценты.
проекты одноэтажных домов г образных планировка
Для того, чтобы каждый из жильцов смогодинаково удобно и комфортно пользоваться небольшим двориком с бассейном итеррасой, сюда сделан выход из каждой жилой комнаты. Эта концепция позволяеткаждому жильцу иметь непосредственный доступ к придомовой лаунж-зоне прямо сосвоей спальни. За счет планировки по такому принципу этот одноэтажный Г-образный дом похож на небольшой отель или частнуювиллу.
Чертежи и проекты домов Г-образной формы
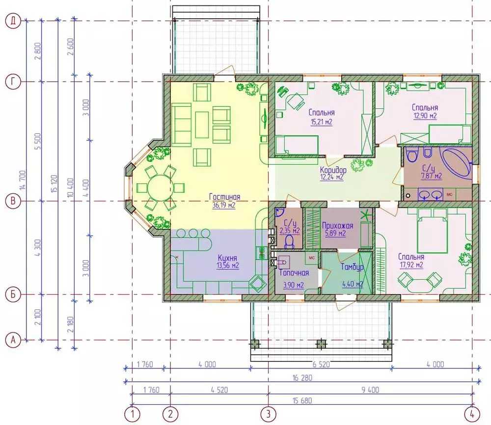
Чертежи домов, сделанных в форме буквы Г, в себе содержат план гаража в доме и всех помещений внутри строения. Эксперты советуют следующую схему расположения комнат:
Теплогенерирующую установку в доме разумно разместить на уровне цоколя или на уровне ключевого этажа, что даст возможность одинаково прогревать все помещения находящиеся внутри
Для брусовых домов большое внимание нужно выделить обеспечению техники безопасности против пожара при обустраивании теплогенерирующей установкой.
Отличительная архитектура угловых Г-образных домов позволяет разнести в пространстве «громкую» и «тихую» зоны, не прибегая к обустраиванию двухярусных помещений. Так, к примеру, в одном крыле дома можно организовать комнаты для сна и кабинет, а в ином – игровую и гостевую
Прекрасным решением при этом будет поместить между этими зонами план кухни со столовой, как буферную территорию помещения.
Г-образный коттедж за городом с бассейном
Г-образные сооружения дают возможность организовать в них встроенный автогараж, пользование которым будет удобным. Если посмотреть на чертежи Г-образных угловых домов, то видно, что вход в подобный гараж организуется как из помещения, что весьма комфортно в холодный период года, так и с улицы. Такие гаражи подсоединяются к единой отопительной системе дома, что дает возможность сэкономить на независимом отоплении для отдельно стоящего гаража.
Проект в один этаж Г-образного сооружения с мансардой может в себя включать организацию «тихой» зоны на втором уровне дома. Тогда весь первый уровень отводится под «громкую» территорию (комнаты единого пользования), под хозяйственно-бытовые помещения, автогараж. В этом варианте планировки дома нужно не забывать, что обязательно на каждом уровне организуется сантехнический узел (при этом на втором уровне возможна организация только комнаты с ванной, без санузла).
Одним из необязательных, но очень желательных, элементов архитектуры Г-образных домов считается просторная открытая пристройка дома или пристройка к дому, которая будет не только украшением строения, но и практичной его единицей.
Есть несколько главных правил благоустройства открытых пристроек к дому. Во-первых, для их расположения следует выбирать отлично прогреваемую сторону дома (южную или юго-восточную). Второе, располагать её нужно с подветренной стороны, чтобы обезопасить от сильных господствующих ветров. Аналогичным образом, исходя из описанных выше свойств Г-образного сооружения, становится ясно, что прекрасным местом для расположения открытой пристройки дома (пристройки к дому) в домах такого типа считается внутренний угол дома, интеллигентный крыльями сооружения.
Вариант планировки г-образного загородного дома с пристройкой к дому
Тут обеспечивается максимально комфортабельный климат, дающий возможность пользоваться крытой террасой не только в солнечные погожие дни, но и в плохую погоду.
Необходимо понимать, что пристройка к дому и закрытая терраса – это не тоже самое. Первая размещается, в основном, на едином с домом основании и считается словно продолжением дома. Нередко и крыша у пристройки к дому с домом общая. Закрытая терраса – это отдельно отстоящая площадка, которая нередко совсем не снабжена кровлей. Чертежи Г-образных зданий чаще содержат пристройку к дому, т. к. она замечательно входит во внутренний угол дома. Нередко пристройка к дому собственной формой полностью повторяет геометрию строения и также считается угловой.
https://youtube.com/watch?v=qc75GIiXFfs
Аналогичным образом, видно, что Г-образные сооружения, во-первых, считаются прекрасным вариантом для застройки угловых участков. Второе, имеют комфортный внутренний угол, который вероятно будет гарантирован открытой пристройкой к дому. И третье, он считается достаточно просторным при всей собственной внешней компактности. И все эти положительные качества подчёркиваются необычным и стильным фасадом строения.





























